This beautiful cottage is packed with character and is located on the southwest side of Irvington. It has easy access to highways and is only 15 minutes from downtown Indianapolis; also walkable/bikeable to local shops, parks, trails, and restaurants in the area. Irvington is a unique area, it's the largest locally protected historic district in Indianapolis, and known for its local festivals and events.
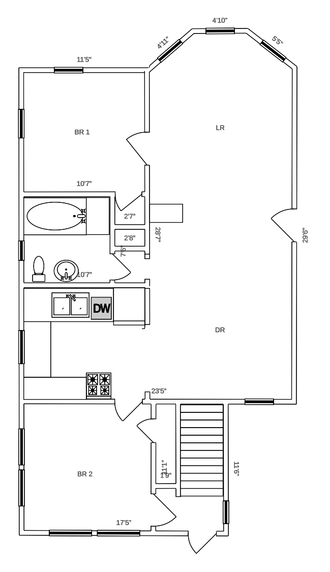
The large living room welcomes you with bay windows, tall ceilings, new ceiling fans, fresh paint, and new flooring throughout. The kitchen features new cabinets, upgraded gas stove, stainless steel fridge, microwave and dishwasher with an adjacent dining area. Both bedrooms have been freshly painted and are very spacious with tall ceilings, new ceiling fans and ample closet space. Master bedroom leads to a large basement bonus room, with included washer and dryer. The bathroom is also completely remodeled and has new tile flooring, and vanity sink with marble countertop.
Step outside to the private backyard oasis, with a large deck and fully fenced backyard. A detached one car garage is also included with a workshop area and carport.
A security system is in place, can take over the contract for a low monthly fee if desired.
Why this house is perfect for you
Easy access to the highways and only 15 minutes from downtown Indianapolis; walkable/bikeable to local shops, parks, trails, and restaurants.
Packed with character in a quiet neighborhood near the Historic District of Irvington. Hosts many local events and festivals throughout the year.
Unwind in the private and large backyard with family and friends.
1 car garage with opener, carport inside fenced area, with additional parking on gravel pad.











